物件情報
- 価格
- 6,190万円
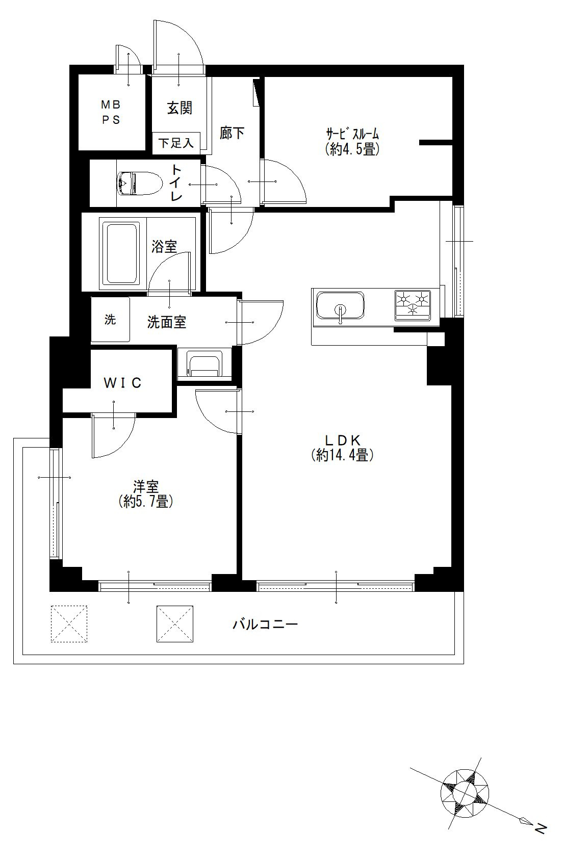
- 間取り
- 1SLDK+WIC
- 所在地
- 東京都文京区音羽1-17-16
- 最寄駅
- 東京メトロ有楽町線「護国寺」駅 徒歩3分
東京メトロ丸ノ内線「茗荷谷」駅 徒歩13分
- 土地権利
- 所有権
- 用途地域
- 商業地域
- 専有面積
- 56.15㎡(壁芯)
- バルコニー
- 10.25㎡(東)
- 構造/所在階
- 鉄骨鉄筋コンクリート造11階建/8階部分
- 総戸数
- 39戸
- 建築年月
- 1980年5月
- 施工会社
- 株式会社熊谷組
- 管理会社
- 株式会社東京建物アメニティサポート(全部委託/日勤)
- 管理費
- 月額 15,200円
- 修繕積立金
- 月額 13,800円
- 駐車場
- 無
- 引渡日
- 相談
- 現況
- 空室
物件の特徴
【2025年12月新規内装リノベーション済み】
・システムキッチン交換
・ユニットバス交換
・トイレ交換
・洗面化粧台交換
・クロス、フローリング貼替
・建具交換
・給湯器交換
【室内設備】
・浄水機能
・浴室換気乾燥機
・追い焚き機能
・温水洗浄便座
・TVモニター付きインターホン
【建物設備】
・エレベーター
・オートロック
・駐輪場有:月額 500円
・バイク置場有:月額 800円
■ペット飼育:迷惑危害を与える恐れのあるもの不可(犬猫不可)
■アフターサービス保証付き
■角部屋